Our projects From Pune Architectural Firm

our Ongoing Project Management Consultancy Projects

SHREE CHSL

BALEWADI RD, LAXMI NAGAR, BALEWADI, PUNE

  • Plot Area – 2600 Sq.M
  • APPROX. PROPOSED BUILT-UP AREA 10542.4 SQ.M.
  • No. Of Tenants – 31

UDYOG NAGAR CHSL

CHINCHWAD, PUNE

  • Plot Area – 1103.67 Sq.M
  • No. Of Tenants – 24

YASHODHAM CHSL

PAWANA NAGAR, CHINCHWAD, PUNE

  • Plot Area – 501.5 Sq.M
  • APPROX. PROPOSED BUILT-UP AREA 1631.28 SQ.M.
  • No. Of Tenants – 12
  • Builder – ABHINANDAN SPACES

GANESH GARDEN CHSL & GANESH RESIDENCY CHSL

DAPODI, PIMPRI CHINCHWAD,PUNE

  • Plot Area – 1945.047 + 605.096 Sq.M
  • APPROX. PROPOSED BUILT-UP AREA 17574.14 SQ.M.
  • No. Of Tenants – 137

ASO PALAV CHSL

SANEWADI, PUNE

  • Plot Area – 1056.46 Sq.M
  • APPROX. PROPOSED BUILT-UP AREA 4281.62 SQ.M.
  • No. Of Tenants – 19
  • Builder – CHAPHALKAR KARANDIKAR

GANESH PURAM

DAPODI, PIMPRI CHINCHWAD,PUNE

  • Plot Area – 1757 Sq.M
  • APPROX. PROPOSED BUILT-UP AREA 11244.8 SQ.M.
  • No. Of Tenants – 75

TRIDAL NAGAR CHS

YERAWADA,PUNE

  • Plot Area – 32775 Sq.M
  • APPROX. PROPOSED BUILT-UP AREA 131100 SQ.M.
  • No. Of Tenants – 288

GOYAL SHINDE PARK

BHAU PATIL RD, BOPODI, PUNE 411 020

  • Plot Area – 4677.375 Sq.M
  • No. Of Tenants – 100

AMBARNEEL CHS

SANEWADI, PUNE

  • Plot Area – 2011.23 Sq.M
  • APPROX. PROPOSED BUILT-UP AREA 8044.92 SQ.M.
  • No. Of Tenants – 36

KAKDE PARK CHS

 PIMPRI CHINCHWAD,PUNE

  • Plot Area – 8243 Sq.M
  • No. Of Tenants – 238

POPLULAR NAGAR CHS

WARJE, PUNE

  • Plot Area – 5332.84 Sq.M
  • No. Of Tenants – 108

Our Ongoing Architectural Projects

LOKMANYA NAGAR CHSL

  • Plot Area – 5007.46 Sq.M
  • APPROX. PROPOSED BUILT-UP AREA 40408.61 SQ.M.
  • No. Of Tenants – 108
  • Developer – DESHPANDE ANSHU GLOBAL VENTURES LLP

LOKMANYA NAGAR CHSL

  • Plot Area – 848.5 Sq.M
  • APPROX. PROPOSED BUILT-UP AREA 3831.87 SQ.M.
  • Developer – AGARWAL CONSTRUCTION

Our MHADA Projects And Layouts

SNEH CHSL

MHADA OPPOSITE SHALINI RESIDENCY, KARVE NAGAR, PUNE

  • Plot Area – 6877.04 Sq.M
  • APPROX. PROPOSED BUILT-UP AREA 33009.79 SQ.M.
  • No. Of Tenants – 88
  • Developer – KOTIBHASKAR

NETAJI NAGAR CHSL

WANAWARI, PUNE

  • Plot Area – 45020.07 Sq.M
  • APPROX. PROPOSED BUILT-UP AREA 216000 SQ.M.
  • No. Of Tenants – 593

LOKMANYA NAGAR CHSL

 PUNE

  • Plot Area – 5007.46 Sq.M
  • APPROX. PROPOSED BUILT-UP AREA 40408.61 SQ.M.
  • No. Of Tenants – 108
  • Developer – DESHPANDE ANSHU GLOBAL VENTURES LLP

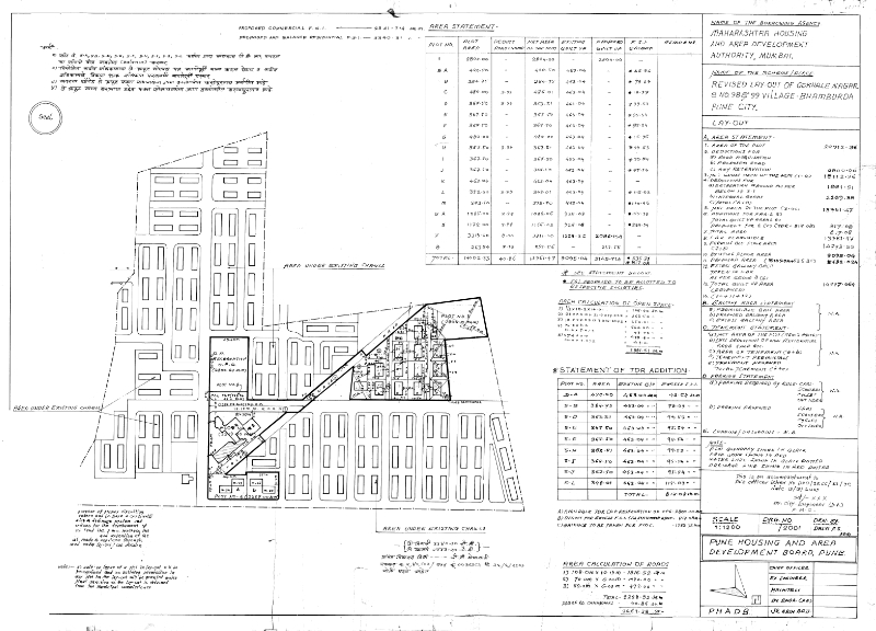
S. NO. 97 (PART), GOKHALE NAGAR

BHANDARKAR ROAD, PUNE

  • Plot Area – 74165 Sq.M
  • APPROX. PROPOSED BUILT-UP AREA 216000 SQ.M.

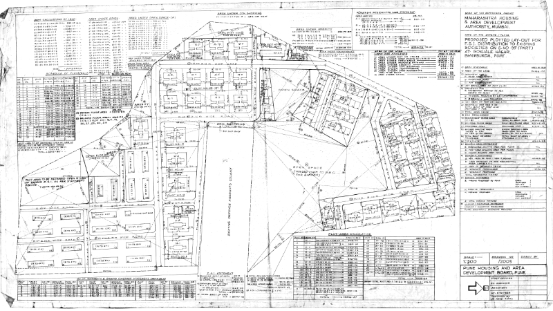
S. NO. 98, 99, GOKHALE NAGAR

BHANDARKAR ROAD, PUNE

  • Plot Area – 20912.036 Sq.M
  • APPROX. PROPOSED BUILT-UP AREA 40408.61 SQ.M.

Our Interior Designing Projects 

HOGANAS

Elegantly designed 3bhk house with trendy design ideas.

Dr. Ravindra Nandedkar 2 bhk

  • Subtle theme used which gives soothing and calming effect accordingly light blue, grey and white colour shades preferred.

Gogate

Elegantly designed 3bhk house with trendy design ideas.

Vasekar  3 bhk

Design intended with modern approach with elements such as profile lighting, dining partitions and stone finished laminates.

Lavekar 1bhk

A project with simple and classic look done with smooth finishes.

Sardeshmukh 3bhk

Profoundly stylish interiors for this boutique with special false ceiling design, round edged storages and creative entrance foyer.

Pathak 2bhk

Project done with intricate design details.

Kalpataru 3bhk

Minimalist design approach keeping in mind client’s requirement.

Pathak Nimbalkar

Elegantly designed 2bhk with cool colour palette.